Maison Bioclimatique BBC - Lanta

(31570)

Ce projet situé à quelques km de Toulouse, dispose d'un terrain intéressant:
- situé sur les hauteurs des collines lauragaises, il bénéficie d’une belle vue sur le vallon en contrebas.
- son exposition Nord-Sud est idéale pour atteindre un objectif de maison bioclimatique.

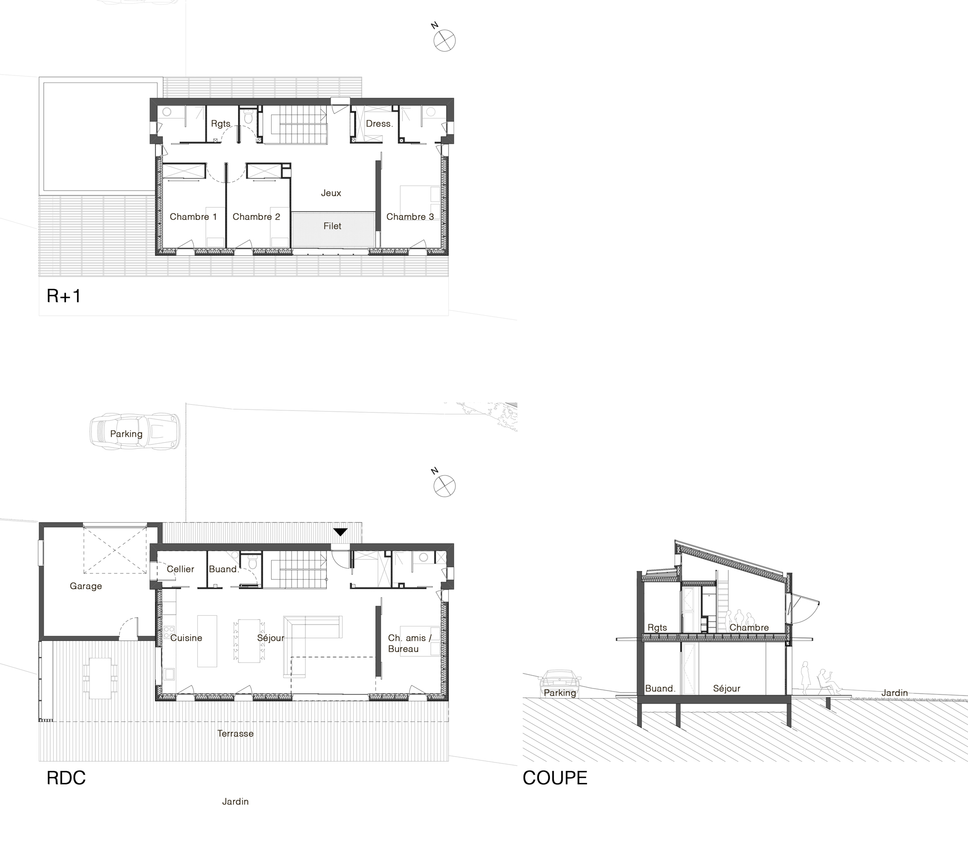
La maison s'organise pour profiter de ces atouts. Elle se décompose en deux entités:
- Au Nord, un premier volume en maçonnerie relativement opaque vient abriter les pièces "techniques" de la maison (cellier, sanitaires, rangements, etc…). Il sert à isoler les pièces de vie des nuisances de la rue et des intempéries du Nord. Il servira également à fournir de l'inertie thermique à l'habitation.
- Au Sud, un second volume en ossature bois accueille les pièces de vie et les chambres. Ces espaces sont largement vitrés au Sud afin de bénéficier des apports solaires en hiver, et de la vue sur le vallon.
Une large casquette vient protéger les vitrages en été et se prolonge en une large terrasse abritée. Ce projet de maison veut le bien-être de ses occupants tout en respectant l'environnement.

Construction d'une maison contemporaine bioclimatique

Surface : 160 m2

Coût des travaux : 330 000 € TTC

Début des travaux : Septembre 2010

Fin des travaux : Mai 2011


TILT - Agence d'Architecture Toulouse - 31